Mobile Home For Sale
The Lapis
$55 000
The Lapis – FOR SALE & Ready for Immediate Possession!
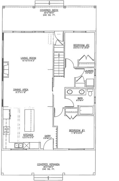
Size: 1,140 sq. ft.
Bedrooms: 2
Bathrooms: 1
Price: $55,000 – Fast Sale Special!
Down Payment: $5,000
Financing & Rent-to-Own Options Available
Why You’ll Love The Lapis:
• Spacious and efficient 2-bedroom layout
• Full 1 bathroom with quality finishes
• Open-concept living and kitchen area
• Ideal for small families, couples, or a home office setup
• Move-in ready — no wait times!
⸻
Delivery available (contact us for rates and setup details)
Don’t Wait! This deal won’t last long.
Call/Text: (309) 425-3063
Email: tinyhousesforsale01@gmail.com





















Reviews
There are no reviews yet.