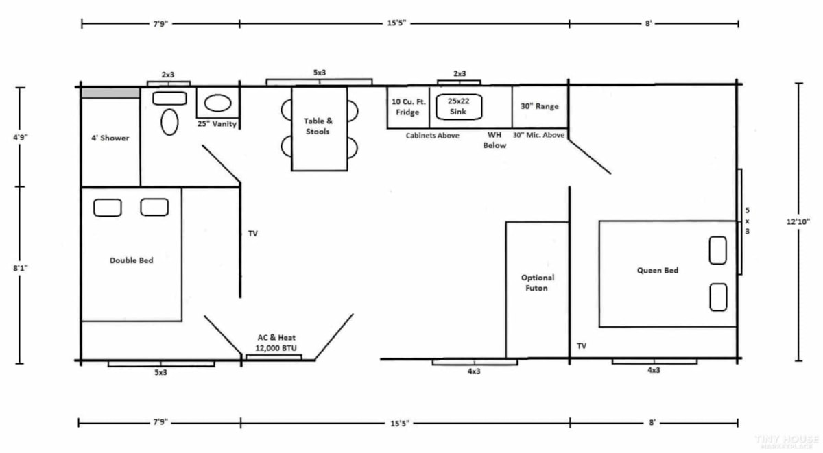
2 Bedrooms + Loft: This cabin includes two cozy bedrooms plus a spacious loft, ideal for additional sleeping space or extra storage. – Superior Build Quality: Constructed with solid 4×6 kiln-dried Eastern White Pine logs, the Rancher Cabin features a 28-gauge metal roof available in forest green, offering durability and a 40-year lifespan. – Inside, you’ll find 2×6 tongue & groove Southern Yellow Pine roof and floor boards, cathedral ceilings with exposed log beams, and solid pine interior doors, all finished with two coats of polyurethane for lasting beauty. – The cabin includes a complete electrical package with light fixtures, ceiling fans, and outlets. The AC & Heat wall-mount ductless mini-split system ensures year-round comfort, while the kitchen comes with rustic Hickory cabinets, a 25×22 kitchen sink with a gooseneck faucet, a 10 cu. ft. fridge, and a 30” electric range/oven. – Bathroom Amenities: The bathroom is outfitted with a 4’ shower, 24” or 30” vanity with a faucet, a toilet, a medicine cabinet, and an exhaust fan for ventilation. Specifications: -Dimensions: 12’ 10″ x 31’ 4″ Park Model = 400 sq.ft. – Loft + 2 Bedrooms: Spacious layout perfect for families or guests. – RVIA Seal: Built to the ANSI A119.5 standards, with a VIN number. – Heavy-Duty Frame: 10” I-Beams & outriggers for structural stability. – 6/12 roof pitch – Stained Exterior Logs These Rancher Cabins are in high demand and won’t last long. The price listed here is a limited-time offer, with a $10,000 discount off the regular price. Contact us today for more information.













Reviews
There are no reviews yet.